Falmec Stilo NRS Manual

Falmec Emhætte Stilo NRS

Læs gratis den danske manual til Falmec Stilo NRS (56 sider) i kategorien Emhætte. Denne vejledning er vurderet som hjælpsom af 4 personer og har en gennemsnitlig bedømmelse på 4.7 stjerner ud af 2.5 anmeldelser. Har du et spørgsmål om Falmec Stilo NRS, eller vil du spørge andre brugere om produktet?

Side 1/56
wall/parete
Horizon
Lumina
Plane
Stilo
Vela
IT LIBRETTO ISTRUZIONI
EN INSTRUCTIONS BOOKLET
DE GEBRAUCHSANWEISUNG
FR MODE D'EMPLOI
ES MANUAL DE INSTRUCCIONES
RU ИНСТРУКЦИИ
PL INSTRUKCJA OBSŁUGI
NL HANDLEIDING
PT MANUAL DE INSTRUÇÕES
DK BRUGSANIVSNINGER
SE INSTRUKTIONSBOK
FI OHJEKIRJA
NO BRUKSANVISNING
video
d'installazione
installation
video
2
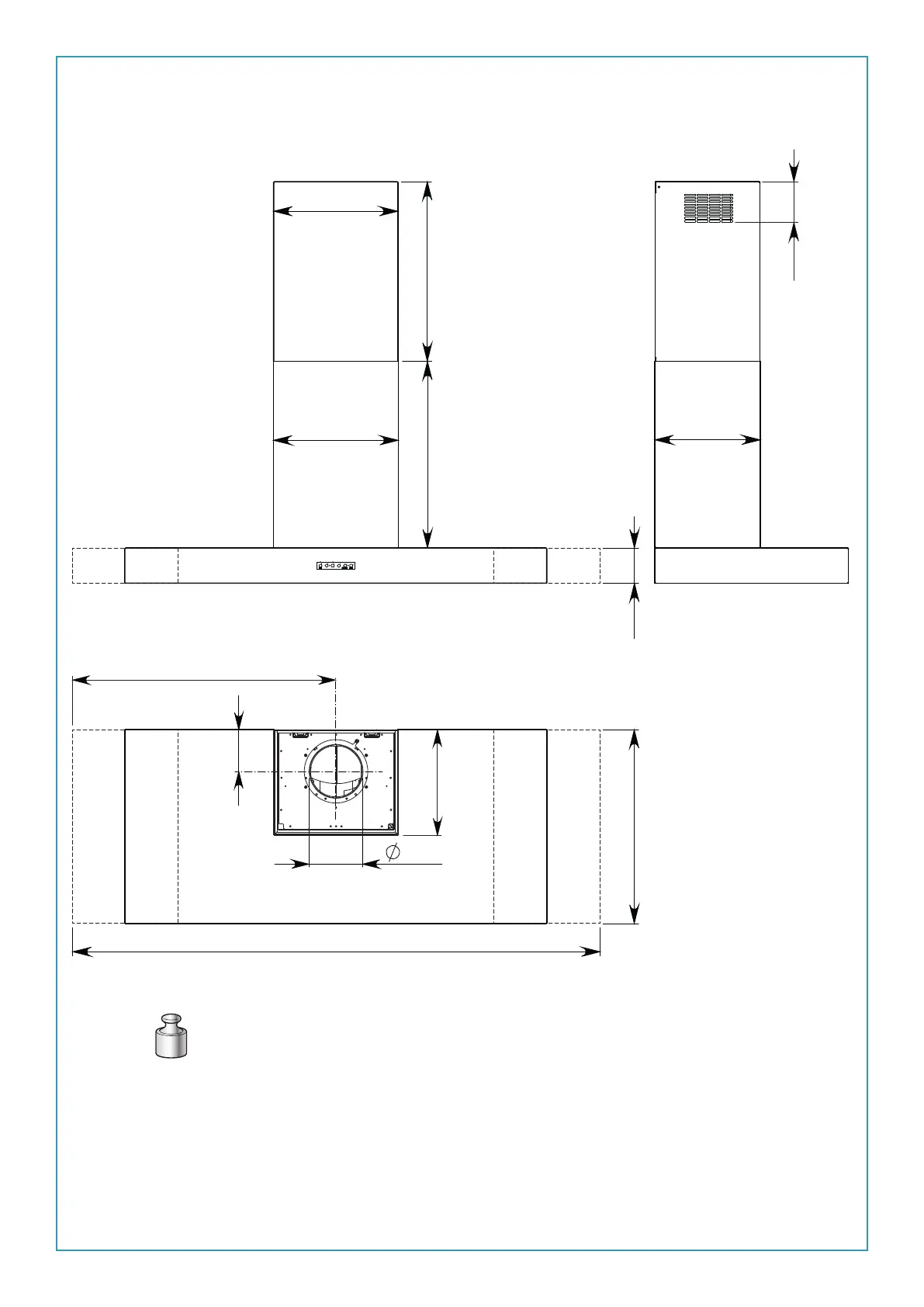
900 - 1200 - 1500
550
100
355
530
max 510
353
300
450 - 600 - 750
118
300
150
115
Horizon 150: 88 kg


Produkt Specifikationer

Mærke: Falmec
Kategori: Emhætte
Model: Stilo NRS

Har du brug for hjælp?

Hvis du har brug for hjælp til Falmec Stilo NRS stil et spørgsmål nedenfor, og andre brugere vil svare dig