ASI 8206-SC-R Manual


Læs gratis den danske manual til ASI 8206-SC-R (2 sider) i kategorien Ikke kategoriseret. Denne vejledning er vurderet som hjælpsom af 3 personer og har en gennemsnitlig bedømmelse på 4.4 stjerner ud af 2 anmeldelser. Har du et spørgsmål om ASI 8206-SC-R, eller vil du spørge andre brugere om produktet?

Side 1/2
AMERICAN SPECIALTIES, INC.
441 Saw Mill River Road, Yonkers, NY 10701
(914) 476.9000 • (914) 476.0688
www.americanspecialties.com
MODEL №:
ISSUED:
REVISED:
THIS MANUFACTURER RESERVES THE RIGHT TO MAKE CHANGES IN DESIGN OR DIMENSIONS WITHOUT FORMAL NOTICE
12 SEP 2019
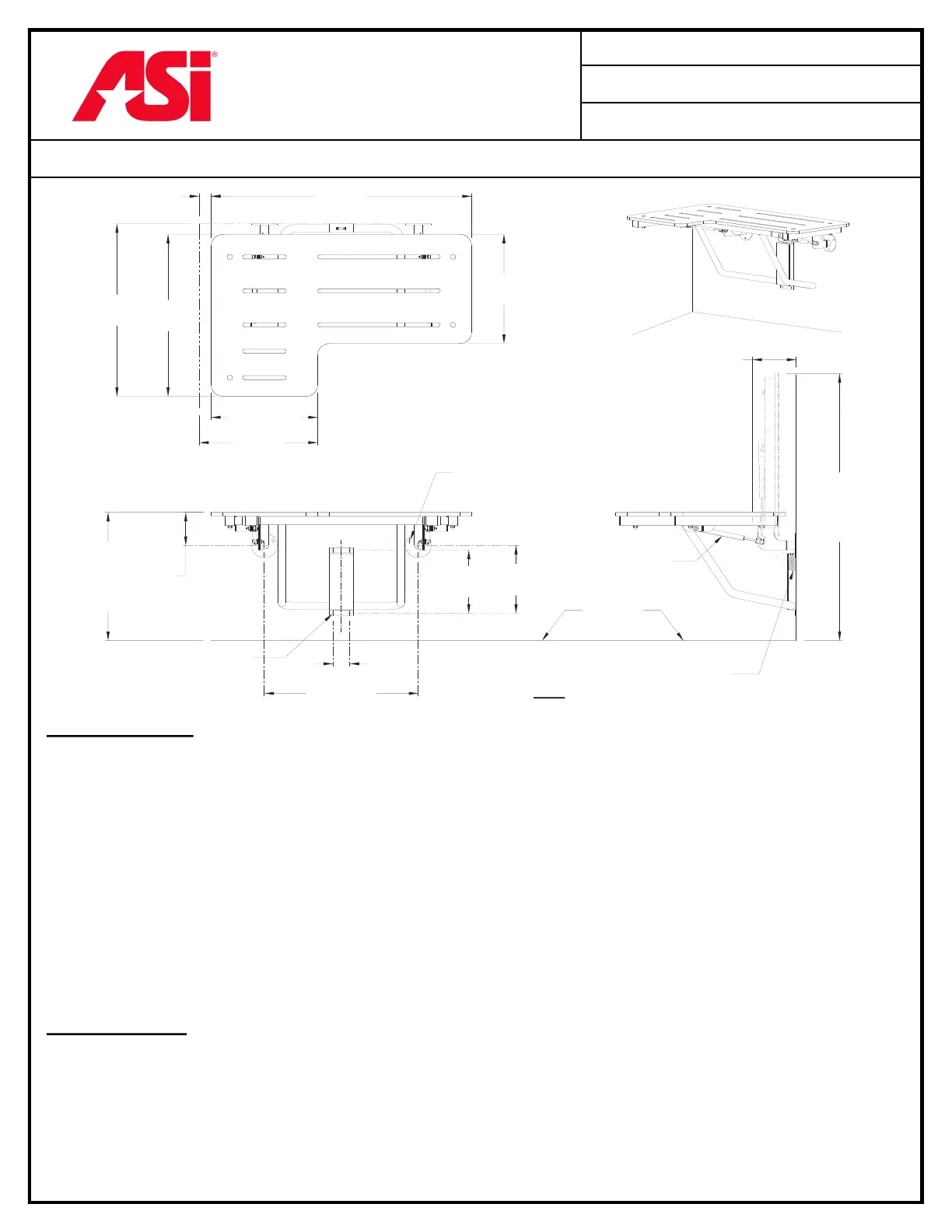
L-SHAPED PHENOLIC FOLD-UP SHOWER STALL SEAT (Pg 1 of 2)
8206-SC
17 APR 2019
SPECIFICATION
L-shaped Phenolic Fold-up Shower Stall Seat shall have all metal parts of type 304 stainless steel alloy 18-8 with
satin finish. Seat frame and support legs shall be 1" diameter [Ø25] and 1-1/4" [32] square x 18 gauge [1,2] with
3/16" [4,8] thick mounting flanges and 16 gauge [1,5] guide bracket/arm support. Structural assembly shall be of
welded construction and all exposed edges and corners shall be eased and smoothed. Seat shall be solid phenolic
with white top and bottom surfaces and shall have black edges. Support arm shall fold up when in retracted posi-
tion to provide low profile against wall. No extra fittings shall be required to retain seat in storage position. Guide
bracket shall control seat lowering into operating position and gas struts shall assist opening and lowering actions.
Seat shall be field reversible for RH or LH requirements. Unit shall satisfy 2010 ADA Accessibility Standards
when mounted properly.
L-Shaped Phenolic Fold-up Shower Stall Seat shall be Model 8206-SC -___(R for right hand or L for left
hand) as manufactured by American Specialties, Inc., 441 Saw Mill River Road, Yonkers, New York 10701-
4913
INSTALLATION
This unit is surface mounted. Installer/construction contractor must provide concealed anchor plate or blocking as
specified in construction documents or as required by local building codes prior to wall finishing. Fasten unit
flanges and guide bracket to concealed anchor or blocking plate with appropriate hardware. Ensure that all fasten-
er systems are waterproofed for wet-wall installations. See STRENGTHsection below. Note that concealed
mounting plates or anchors and hardware are not supplied with this product and must be specified separately. En-
sure that mounting configuration complies with local building codes. Unit is reversible in the field for right or left
hand installation.
33" [838]
14-1/2"
[368]
13-1/2" [343]
4-3/8"
[111]
19-1/2" [495]
2-1/8"
[54]
8-3/8"
[213]
9"
[229]
C
L
C
L
C
L
C
L
C
L
C
L
C
L
21-1/2"
[546]
22-7/8"
[581]
15" [381]
1-1/2" [38]
35-3/8"
[899]
TO
37-3/8"
[949]
17"
[432]
TO
19"
[483]
C
L
FINISHED
FLOOR
SPRING
DETENT
2-1/4" DIA [Ø57]
BOLT CIRCLE FOR #10
FASTENERS
FOUR (4) HOLES
1/4" DIA [Ø6]
STAINLESS STEEL
GAS-STRUTS
5-37/64" [142]
NOTE:
ALL DIMS INCH [MM]
ILLUSTRATION FOR REF ONLY AND NTS
RIGHT HAND SHOWN
LEFT HAND OPPOSITE
FIELD REVERSIBLE


Produkt Specifikationer

Mærke: ASI
Kategori: Ikke kategoriseret
Model: 8206-SC-R

Har du brug for hjælp?

Hvis du har brug for hjælp til ASI 8206-SC-R stil et spørgsmål nedenfor, og andre brugere vil svare dig




Ikke kategoriseret ASI Manualer

Ikke kategoriseret Manualer

Nyeste Ikke kategoriseret Manualer

TriStar

TriStar RA-2941 Manual

30 December 2026
WAC Lighting

WAC Lighting L-1052F Manual

30 December 2026
Biltema

Biltema 84-1588 Manual

30 December 2026
Vaxcel

Vaxcel T0369 Manual

30 December 2026
Akasa

Akasa AK-MX010V2 Manual

30 December 2026
Vevor

Vevor SS-004-6P-WH Manual

30 December 2026
IFM

IFM PG1406 Manual

30 December 2026
Delta

Delta 21C144 Manual

30 December 2026
IFM

IFM EVT167 Manual

30 December 2026