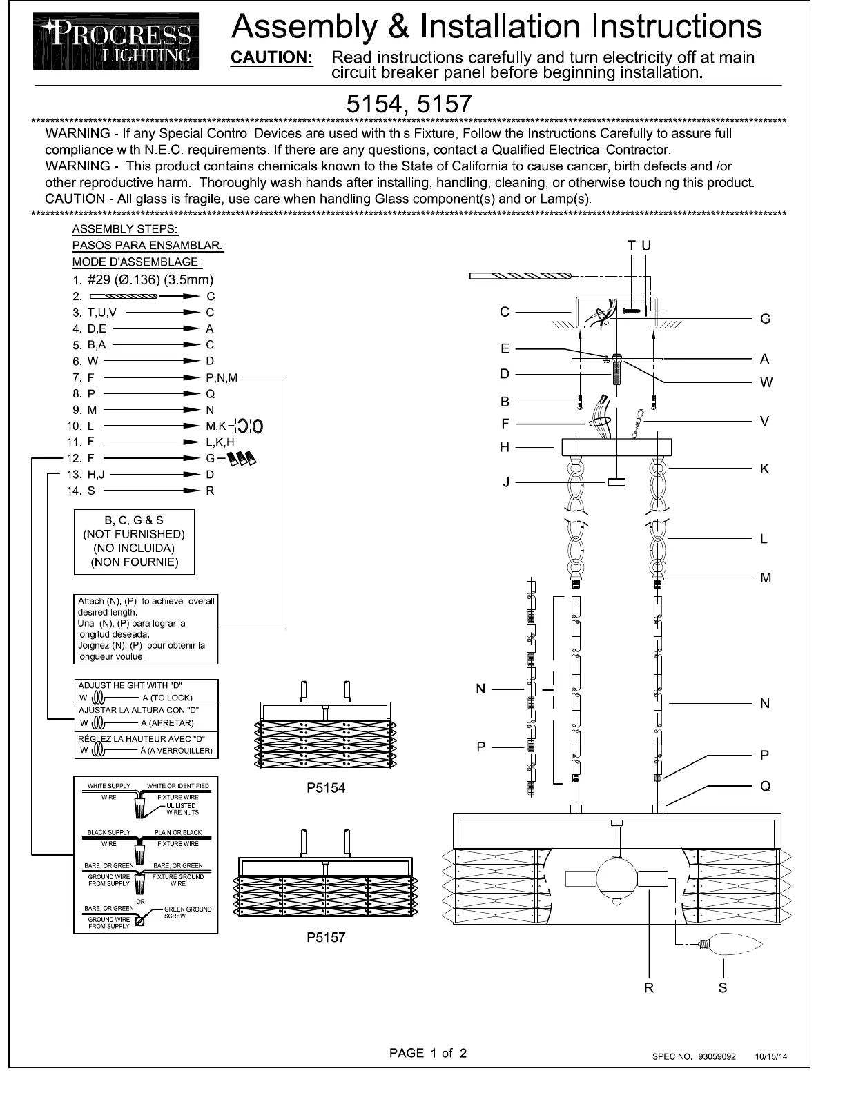
Progress Lighting P5154 Manual
Læs gratis den danske manual til Progress Lighting P5154 (2 sider) i kategorien Lys. Denne vejledning er vurderet som hjælpsom af 2 personer og har en gennemsnitlig bedømmelse på 4.8 stjerner ud af 1.5 anmeldelser.
Har du et spørgsmål om Progress Lighting P5154, eller vil du spørge andre brugere om produktet?

Produkt Specifikationer
| Mærke: | Progress Lighting |
| Kategori: | Lys |
| Model: | P5154 |
Har du brug for hjælp?
Hvis du har brug for hjælp til Progress Lighting P5154 stil et spørgsmål nedenfor, og andre brugere vil svare dig
Lys Progress Lighting Manualer
Lys Manualer
- Flex
- AFX
- Stairville
- Neno
- Quigg
- DiO
- Royal Sovereign
- Savio
- Ecolight
- Brilliant
- Freedom
- Vemer
- Zero 88
- Dals
- Trotec