
M8-AV-PRO INSTRUCTIONS - English M8-AV-PRO INSTRUCCIONES - Español
PO
WER O
N
PROTE
CT
I
ON
OK
G
R
OU
ND
O
K
UNSAFE VOL
TAGE
DC TRIGGER
POWER
VO
LTA
GE TRIG
GER
P
OW
ER
ON
PROTE
CT
ION OK
G
RO
U
N
D OK
U
N
SAFE
V
O
LT
A
GE
D
C
T
R
IG
G
ER
Instalacion (CA):
1. Apague todo el equipo que va a ser
conectado a la unidad.
2. Aseg rese que el protector est apagado
y que est» en la posici n OFF (vea el dibu-
jo). Enchufe la unidad al enchufe en la
pared y encienda.
3. Unsafe Voltage (voltaje peligroso) -
(rojo) normalmente OFF; cuando est encen-
dida, es una luz intermitente que indica que
el voltaje es inseguro y que el protector ha
desconectado su equipo conectado.
4. DC Trigger (disparador de corriente
continuo) - (verde) el status ON/OFF
depende de si una se al 12VDC est siendo
recibida de otro componente.
ON = La se“ al de voltaje de corriente contin-
ua (DC) est siendo recibida y los enchufes
de alta corriente est n encendidos;
OFF = No hay se“ al de un componente y los
enchufes de alta corriente est n apagados.
El M8-AV-PRO ha sido dise“ ada, teniendo en
mente, flexibilidad y expansion. Esto modelo
acepta m dulos de protecci n de linea de
se“al adicionales en el evento que su insta-
laci n tenga m s lineas de se“ales que nece-
siten protecci n con una de la unidades
nombradas. M s informaci n est a su dis-
posici n en nuestro sitio web (www.pana-
max.com) o de nuestro departamento de
cuidado del cliente (800-472-5555; 7:30 am-
4:30 PM tiempo pacifico).
Si tiene alguna pregunta sobre cual protector
es el mejor para su equipo, favor de ir a nue-
stro sitio web (www.panamax.com) o p n-
gase en contacto con nuestro departamento
de cuidado del cliente.
Conectando su protector contra
sobrecargas de tensi n correcta-
mente
Para proteger su equipo completamente de
sobrecargas, cada alambre que sale o entra
del equipo que usted quiere proteger debe
ser conectado al protector de sobrecargas de
tensión indicado. Rel mpagos dañinos y
sobrecargas de tensión pueden entrar a su
sistema por cualquier línea de señal (Ã
telefonica, alambres de tierra, cables coaxi-
ales, cables modem, cables red de rea local
(LAN), etc.) o corriente alterna que estén
conectados a su equipo electrónico.
Puntos importantes de seguridad
Los protectores contra sobrecargas de ten-
si n y el equipo conectado deben estar
adentro en un local seco y en el mismo edi-
ficio. Aunque su protector Panamax es
duradero, sus componentes internos no
est n aislados del ambiente. No
instale
ning n producto de Panamax cerca de
aparatos que emitan calor tal como un radi
-
ador o contador rmico. No instale este
producto donde haya humedad excessiva tal
como una tina, fregadero, piscina, en el piso
de un s tano, pescera, etc.
Es comunique un edificio no est correcta-
mente conectado a tierra. Para proteger su
equipo, los productos de Panamax deber n
ser directamente enchufados a un tomacor-
riente CA de 3-alambres con conexi n a
tierra. Adicionalmente, el alambrado del
edificio y conexi n a tierra deber n confor-
marse a los c digos NEC (EEUU) o CEC
(Canada) para que la p liza de protecci n
de Panamax sea v lida.
No use adaptadores de 2-cuchillas o
cualquier otro cintas de energia con este
producto. S lo use cables de extensi n de
Panamax si requiere un cable m s largo.
M8-AV-
PRO - Provee protecci n CA
(sobrecargas, subtensi n y sobretensi n),
protección coaxial (CATV, antena fuera de
aire o cable para modem) y protección de
lÃnea de teléfono para aparatos electróni-
cos. Además tiene un disparador de
entrada y dos bancos de (4 enchufes de
CA cada uno) de circuitos de filtración de
ruido. El primero, es un circuito de fil-
tración capacitativa, es para componentes
de alta corriente tales como amplificadores
y subwoofers. El otro es un filtro equili-
brador doble L para equipo con fuentes
A/V o aparatos de visualización.
Ésto modelo tiene 8 enchufes CA que son
controladas por la combinación cortacir-
cuito/conmutador de electricidad. Los 4
enchufes de alta corriente tambi n pueden
ser controlados por una señal 12VDC de
otro componente. Este circuito continua-
mente monitorea la electricidad y protege
contra daño causado por la reducción de
tensión de línea y sobretensión continua.
Autom ticamente desconecta la electricidad
a su equipo conectado cuando cualquiera
de estas condiciones es detectada, y
entonces lo reconecta cuando la electricidad
ha regresado a un nivel prudente.
Esto modelo tiene 4 diodos emisores de luz
(LED) para seguridad m xima. Est n nom-
brados como sigue:
1. Power ON, Protection OK - (verde)
normalmente ON; indica que el protector
est funcionando correctamente y que todo
el equipo conectado est protegido.
2. Ground OK (tierra OK) - (verde) nor-
malmente ON; indica que el tomacorriente de
la pared est correctamente alambrado y
puesto a tierra.
3. Verifique que el LED verde Ground OK
est prendido, esto indica que el enchufe en
la pared est correctamente alambrado y
puesto a tierra.
4. Enchufe el equipo que va a proteger a la
unidad Panamax y uno por uno, encienda
cada una de las piezas de equipo conecta-
do y vea si est n operando correctamente.
a. Equipo Audio/Video tales como recep-
tores, lectores DVD, Televisores, etc, deben
ser enchufados a los tomacorrientes enu-
merados 1-4. Este banco de tomacorri-
entes provee electricidad de un circuito de
filtraci n Ïequilibrador doble L para que el
ruido de interferencia electrom gnetica/
interferencia radioel ctrica (EMI/RFI) no
interfiera con su equipo de visualisaci n/
fuente.
b. Equipo de alta corriente tales como
amplificadores y altavoces
deben ser ench-
ufados en los tomacorrientes ennumerados
5-8. El banco de circuitos de filtros capac-
itativos (sin inductores) limpian la corriente
sin limitar el consumo de corriente a sus
amplificadores.
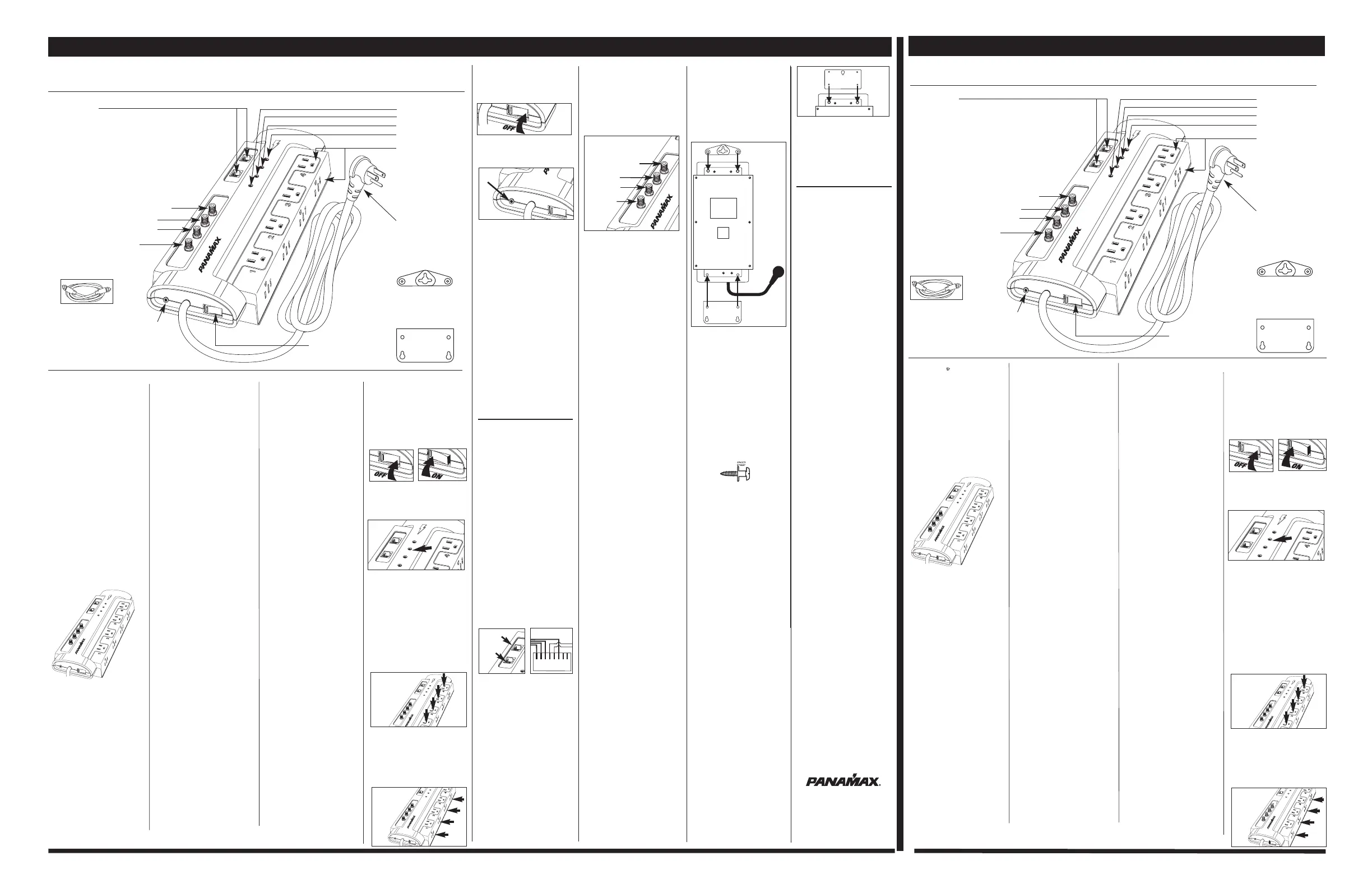
LED Indicators
DC Trigger LED
Unsafe Voltage LED
Ground OK LED
Power ON/Protection OK LED
Phone Jacks
ON/OFF Power Switch and
Circuit Breaker Combo
8 ft. AC Power Cord
Right Angle with
45 Degree Offset Plug
8 AC Outlets
Outlets 1-4 feature
Balanced Double
L
Filtration Circuit
Outlets 5-8 for high
current equipment
Top and Bottom
Mounting Brackets
(Screws and Spacer
Eyelets included)
Telco and LAN Connector RJ-45
Una nota para instaladores de ante-
nas de television, sat lite, y cable:
Art culos 810.21 y 820.40 del c digo NEC
provee gu as especif as a como conectar a
tierra correctamente, y en particular, especi-
fica quel cable de tierra ser conectado al
sistema de tierra del edificio, lo m s cer-
cano a la entrada del cable que sea posible.
DC Trigger
For high current
outlets (5-8)
La garantia de $5,000,000 de protecci n de
equipo conectado de Panamax es nula si
cualquier alambre entrando o saliendo del
equipo no est correctamente conectado al
protector(es) contra sobrecargas de tensi n
indicado. El protector contra sobrecargas de
tensi n tambian debe ser enchufado a un
tomacorriente alambrado correctamente y
puesto a tierra. Favor de leer la garantia para
detalles o si tiene preguntas llame al depar-
tamento de atenci n del cliente de Panamax.
POW
E
R ON
PROT
ECTI
O
N
OK
GROU
ND O
K
UNSAFE VOLTAGE
DC TRIGGER
POWER
VO
L
TAGE
TRIG
GER
P
O
W
E
R ON
P
ROT
E
CT
ION OK
G
RO
UND
OK
U
N
SAFE
VO
L
T
AG
E
D
C
TR
I
G
G
E
R
INSTALLATION (AC Power):
1. Turn OFF the power to all equipment
that will be plugged into the unit.
2. Make sure that the ON/OFF switch is in
the OFF position (see figure). Plug the unit
into the wall outlet and then turn it ON.
3. UNSAFE VOLTAGE - (red) normally
OFF; flashes when lit, indicates that
incoming voltages are unsafe and the
surge protector has disconnected the
power to your connected equipment.
4. DC Trigger - (green) ON/OFF status
depends upon whether or not a 12VDC
signal is being received from another
component when utilizing.
ON = DC voltage signal is being received
and high-current outlets are ON;
OFF = No signal from source component
and power to high-current outlets is OFF.
The M8-AV-PRO has been designed with
flexibility and expansion in mind. It will
accept add-on signal-line protection mod-
ules in the event that your installation has
more signal-lines than can be protected
with one unit. More information is avail-
able on our website (www.panamax.com)
or from our Customer Support Department
(800-472-5555; 7:30AM - 4:30PM PST).
If you have any questions about which pro-
tector is best for your application, please
check our website (www.panamax.com) or
contact Panamax Customer Support.
PROPERLY CONNECTING YOUR
SURGE PROTECTOR
To completely protect your equipment from
surges, every wire leading into or out of
the equipment you want to protect must be
connected to the appropriate Panamax
surge protector. Damaging lightning and
power surges can enter your system
through any AC power or signal-line
(phone line, grounding wires, coax cables,
modem cables, LAN cables, etc.) connect-
ed to your electronic equipment.
IMPORTANT SAFETY POINTS
Panamax surge protectors and the con-
nected equipment must be indoors, in a
dry location and in the same building.
Although your Panamax protector is very
durable, its internal components are not
isolated from the environment. Do not
install any Panamax product near heat
emitting appliances such as a radiator or
heat register. Do not install this product
where excessive moisture is present; for
example near a bathtub, sink, pool, base-
ment floor, fish tank, etc.
It is not uncommon for a building to be
improperly grounded. In order to protect
your equipment, Panamax products must
be plugged into a properly wired and
grounded 3-wire outlet. Additionally,
building wiring and grounding must con-
form to applicable NEC (USA) or CEC
(Canada) codes for the Panamax protec-
tion policy to be valid.
Do not use 2-blade adapters or any other
“power strips” with this product. Use only
Panamax extension cords if a longer cord
is required.
M8-AV-PRO - Provides AC power
(surge, under-voltage and over-voltage)
protection, coaxial (CATV, off-air antenna,
SAT or cable modem) protection and tele-
phone/LAN line protection for electronic
devices. In addition, it features a 12VDC
input trigger and two banks (4 AC outlets
each) of noise filtration circuitry. One, a
capacitive filter circuit, is for high-current
draw components like powered sub-
woofers or amplifiers. The other is a bal-
anced double L filter for A/V source
equipment or display devices.
This model features Panamax's patent-
pending Automatic Voltage Monitoring
(AVM) circuitry for over and under voltage
protection. This circuitry continuously
monitors the power and protects against
damage caused by brownouts (under-
voltages) and sustained over-voltages. It
automatically disconnects the power to
your connected equipment when either of
these conditions are detected, then re-
connects it when the power returns to a
safe level.
The M8-AV-PRO's coaxial protection cir-
cuits achieve optimum signal quality from
our new coaxial protectors that have the
smallest signal loss on the market - less
than 0.5dB of attenuation from 5MHz to 2
GHz. Our upgraded coaxial protection has
been specifically designed to virtually elim-
inate signal loss. The clamping level of 75V
will meet the demands of both cable and
satellite voltage while minimizing exposure
to damaging spikes and surges.
This model has 4 diagnostic LEDs for max-
imum safety. They are designated as fol-
lows:
1. POWER ON, PROTECTION OK -
(green) normally ON; indicates that the
surge protector is functioning properly and
that all connected equipment is protected.
2. GROUND OK - (green) normally ON;
indicates that the wall outlet is properly
wired and grounded.
3. Verify that the green Ï Ground OKÓLED
is lit, indicating that
the wall outlet is prop-
erly wired and grounded.
4. Plug the equipment to be protected into
the Panamax unit and one at a time, turn
each piece of connected equipment ON and
check for correct operation.
a. Audio/Video equipment like receivers,
DVD players, TVs, etc. should be plugged
into the outlets numbered 1-4. This bank
of outlets provides power from a
ÏBalanced Double LÓ filtration circuit so
that EMI/RFI noise is prevented from
reaching your source/display equipment.
b. High-current equipment like amplifiers
and powered subwoofers should be
plugged into the outlets numbered 5-8.
This
bankÌs capacitive (inductor-less) filter
circuit cleans the power without limiting
current flow to your amplifiers.
LED Indicators
DC Trigger LED
Unsafe Voltage LED
Ground OK LED
Power ON/Protection OK LED
Phone Jacks
Coax Connectors
ON/OFF Power Switch and
Circuit Breaker Combo
8 ft. AC Power Cord
Right Angle with
45 Degree Offset Plug
8 AC Outlets
Outlets 1-4 feature
ÏBalanced Double LÓ
Filtration Circuit
Outlets 5-8 for high
current equipment
Top and Bottom
Mounting Brackets
(Screws and Spacer
Eyelets included)
2 sets of IN /OUT, bidirectional,
universal coax connectors
1 RG-6 Coax Cable
Coax Connectors
2 sets of IN /OUT, bidirectional,
universal coax connectors
1 RG-6 Coax Cable
Telco and LAN Connector RJ-45
NOTE to TV ANTENNA, SATELLITE
DISH and CATV INSTALLERS:
Articles 810.21 and 820.40 of the NEC
provide specific guidelines for proper
grounding, and in particular, specify that
the cable ground shall be connected to
the grounding system of the building, as
close to the point of cable entry as prac-
tical.
DC Trigger
For high current
outlets (5-8)
The Panamax $5,000,000 Connected
Equipment Protection Policy is void if any
wire leading into or out of the equipment
is not properly connected to the appropri-
ate Panamax surge protector(s). The
surge protector must also be plugged into
a properly wired and grounded outlet.
Please see the warranty for details or con-
tact the Panamax Customer Support
Department with questions.
5. Turn OFF the unit and all connected
equipment before connecting any signal-
lines or installing any add-on signal line
modules.
INSTALLATION (Telephone or LAN
Lines):
IMPORTANT: Note the position of the
LINE and EQUIP jacks on the Panamax
unit. LINE is for the line connection that
comes from the wall or floor jack. EQUIP
is for the line connection to your connect-
ed equipment. The protection circuit will
only function if connected properly.
Reversed connections will pass the signal
to the connected equipment but will also
prevent the protection circuitry from
working and will invalidate the Panamax
Connected Equipment Protection Policy.
1. Make sure the Panamax protector and
all connected equipment is turned OFF.
2. Take the incoming telephone or LAN
line and plug it into the appropriate LINE
jack on the protector. The line should now
be connected between the wall and the
Panamax unit.
3. Plug a telephone or LAN line into the
EQUIP jack and then plug the other end
into the equipment to be protected.
4. Turn ON the protector and the connect-
ed equipment. Verify that each piece of
connected equipment is receiving power
and signal.
The M8-AV-PRO provides telephone and
LAN protection on one set of RJ-45 (RJ-11
compatible) jacks. The telephone circuit
uses pins 4 & 5 while the LAN circuit uses
pins 1, 2, 3 & 6. Adaptors or custom
cables (not included) must be used when
utilizing both protection circuits at the
same time.
small rectangular bracket with a grounding
interface. This bracket replaces the small
triangular wall-mount bracket that comes
with the AC base unit and is needed only
when add-on modules are being installed.
More information can be obtained on the
Panamax website or by calling our
Customer Support Department.
ADDING SIGNAL-LINE MODULES
(Optional):
Some connected equipment may have
more signal-lines than can be protected by
the base unit alone. Panamax offers a line
of add-on signal-line modules (sold sepa-
rately) for these situations. Each module
includes installation instructions and a
WALL MOUNTING (optional):
The small triangular bracket with one
"key-hole" is for the top end of the unit.
This bracket mounts directly to the back
of the unit wi
th the #8-32 x 5/16Ó
machine screws, then to the wall with one
of the #6-20 x 3/4Ópan-head screws and
spacer eyelets (drywall anchors optional).
The large rectangular bracket with two
"key-holes" is for the bottom, line-cord
end of the unit. It mounts directly to the
unit with the thread-forming screws, then
to the wall with the other two #6 pan-head
screws and spacer eyelets (drywall
anchors optional).
Mounting procedure:
1. Mount both brackets to the unit with
the appropriate screws.
2. Determine the mounting location on
the wall and mark the position for the top
mounting screw.
3. Place a spacer eyelet on one of the #6
pan-head screws with the flared end of the
eyelet toward the wall. Drive the screw into
the wall (use the included drywall anchors
for hollow walls) at the marked location,
leaving the eyelet exposed.
4. Position the key-hole on the unit's top
mounting bracket over the eyelet/screw
and slide the unit down to lock the screw-
head into the bracket.
5. Mark the location for the two lower
mounting screws (in the narrow portion of
the key-holes) and drive the screws into
the wall using the other 2 spacer eyelets
like in step #3. The included drywall
anchors should be used for mounting on
hollow walls.
6. Position the protector over the 3 eye-
lets/screws and slide the unit down to lock
it into place.
7. Using the above procedure allows easy
removal of the unit by sliding the unit up to
disengage the brackets from the
eyelets/screws.
INSTALLATION (Coaxial Lines):
TROUBLESHOOTING–
If you are having problems with your surge
protector, read this section.
The “Power On/Protection OK” LED
is not lit, there is no AC power to my
equipment, or my equipment does-
nÌt turn on.
• Make sure that the protector is plugged
into a working AC outlet.
• Check all AC power connections.
• Make sure that the protector and con-
nected equipment are turned on.
• If using the DC Trigger input, verify that
the source equipment is providing the
proper DC
voltage signal.
• Verify that the “Unsafe Voltage“ LED is
not lit. If it is on, the incoming line voltage
is either too high or too low and has been
disconnected from your connected equip-
ment.
• Check to see if the circuit breaker on the
surge protector (combination power
switch/circuit breaker) needs to be reset
(press “ON“ to reset).
• If you still have no power, the protector
may be damaged. Contact Panamax (web-
site or Customer Support Department) for
replacement.
There is no audio or video for my TV,
stereo or VCR.
• Check the coaxial connections, making
sure they are correctly and securely
installed.
• Bypass the coaxial connectors. If your
picture returns,
the protector is damaged.
Contact Panamax (website or Customer
Support Department) for replacement.
• If you still have no picture, a problem
with your cable provider’s signal may exist.
My fax machine, modem or tele-
phone has AC power but still does
not work.
• Check to see if your connected equip-
ment is receiving a dial tone.
• If not, bypass the surge protectorÌs phone
jacks to see if the protector is damaged.
• If your dial tone returns, the protector is
damaged. Contact Panamax (website or
Customer Support Department) for
replacement.
• If you still have no dial tone, a problem
with the phone companyÌs lines may exist.
The Panamax circuit breaker dis-
connects AC power from the con-
nected equipment.
• You have exceeded the ampere rating for
your surge protector. As a temporary fix,
disconnect one or more pieces of equip-
ment. Ask your Panamax dealer about
additional Panamax protectors that may be
required.
1. Make sure the Panamax protector and
all connected equipment is turned OFF.
2. Connect the coaxial cable from the
CATV system, antenna or Satellite dish to
the appropriate LINE connector on the
Panamax protector.
3. Connect a coaxial cable from the
EQUIP jack on the protector to appropriate
input jack on your TV, VCR, Satellite
receiver or cable modem.
4. Repeat steps 2 & 3 for all additional
coaxial line.
Coaxial connectors are bi-directional. You
may install your equipment into either
jack. When used with diplexers, this pro-
tection circuit must be placed between the
diplexer and the Satellite receiver; it will
not protect the diplexer.
LINE (in)
EQUIP (out)
SAT/CATV
(in)
EQUIP (out)
SAT/CATV (in)
EQUIP
(out)
800-472-5555
www.panamax.com
INS00874-ENG-A
8/09
RJ-45
1 2 3 4 5 6 7 8
LAN
TEL
INSTALLATION & OPERATION OF DC
TRIGGER (optional):
The DC Trigger input uses a standard
3.5mm (1/8Ó) mono jack. The circuitry is
bidirectional regarding signal polarity so it
doesnÌt matter whether the center-pin of
the plug is positive or negative. Connect a
standard 2-wire cable with a 3.5mm mini-
plug from your source componentÌs DC
Trigger output (or appropriate AC Adapter
plugged into a switched outlet on your
receiver) to this jack. The 4 high-current
outlets turn ON when a DC voltage signal
is received from your source component.
Power to these 4 outlets is turned OFF
when a DC voltage signal is not being
received.
Please note: Power to the high-current
outlets will be controlled by the combina-
tion power switch/circuit breaker if noth-
ing is plugged into the DC Trigger jack.
1
2
2
1
CAUTION – Do not install this device if there is not at least 10 meters (30 feet) or more of wire between the electrical
outlet and electrical service panel.
PRECAUCIÓN - No instale este dispositivo si no hay al menos 10 metros (30 pies) o más de cable entre la toma de
corriente eléctrica y el servicio de energía eléctrica del panel.